Новая школа в парижском пригороде Трембле-ан-Франс, Франция

Новая школа в парижском пригороде Трембле-ан-Франс, Франция

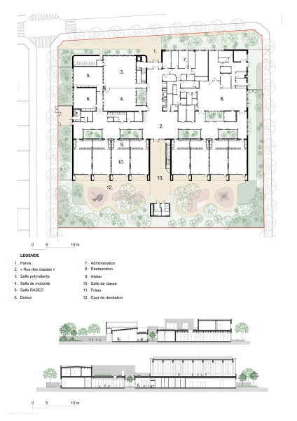
На крыше этой несущей конструкции из камня и дерева школы в Франции расположена спортивная площадка. В школе Groupe Scolaire Simone Veil, расположенной в парижском пригороде Трембле-ан-Франс, на площади 2400 м2 находятся восемь классных комнат, столовая, административные помещения, а также спортивная площадка, которой пользуются местные общественные организации. Архитектурное бюро Le Penhuel & Associés из Парижа использовало для строительства школы палитру биоматериалов, в том числе древесину, местный известняк и глиняный кирпич, что отражает их убеждение в том, что образовательные учреждения должны демонстрировать экологичные методы строительства.

Новая школа в парижском пригороде Трембле-ан-Франс, Франция

«Мы считаем, что здание школы должно наглядно демонстрировать приверженность принципам защиты окружающей среды», — сказал в интервью помощник архитектора Уоррен Леполар. «Поэтому при выборе материалов мы ориентировались на геоматериалы и биоразлагаемые материалы», — продолжил Леполар. «Фасады облицованы несущим камнем из Боннёй-ан-Валуа. Его толщина обеспечивает значительную тепловую инерцию, а местное происхождение гарантирует долговечность, простоту ухода и сохранение внешнего вида здания в течение длительного времени».

Новая школа в парижском пригороде Трембле-ан-Франс, Франция

Леполар добавил, что использование биоматериалов придаёт зданию теплоту и естественную эстетику. «Внутри здания широко используются деревянные конструкции, которые создают тёплую и уютную атмосферу, — объяснил он. — Использование необработанных глиняных кирпичей в перегородках между классами ещё больше подчеркивает использование натуральных и биоразлагаемых материалов по всему зданию».

Новая школа в парижском пригороде Трембле-ан-Франс, Франция

Учитывая меньшие размеры соседних жилых домов, школа Groupe Scolaire Simone Veil занимает преимущественно одноэтажное здание. На небольшом первом этаже расположены спортивная площадка и помещение для школьного смотрителя. В центре школьного здания две оси образуют крест: вытянутый вестибюль с севера на юг и «учебная улица», соединяющая учебные помещения с востока на запад.

Новая школа в парижском пригороде Трембле-ан-Франс, Франция

Эта внутренняя улица украшена красочными арочными нишами и кладовыми, из которых через окна в деревянных рамах открывается вид на ряд небольших внешних двориков. Там, где пересекаются эти два маршрута, была создана внутренняя площадка, которая одновременно служит местом для временных выставок и мероприятий. Она обозначена красочной сине-оранжевой разметкой на полу.

Новая школа в парижском пригороде Трембле-ан-Франс, Франция

Новая школа в парижском пригороде Трембле-ан-Франс, Франция

«Одна из ключевых особенностей проекта — создание многочисленных «мебельных пространств», интегрированных в зоны передвижения», — пояснил Леполар. «Эти элементы позволяют детям использовать переходные пространства как игровые зоны для обучения и отдыха, превращая перемещение по зданию в образовательный процесс», — добавил он.

Новая школа в парижском пригороде Трембле-ан-Франс, Франция

Новая школа в парижском пригороде Трембле-ан-Франс, Франция

Большая лестница, расположенная над столовой и административными помещениями, ведёт на террасу с деревянным настилом и спортивную площадку на крыше школы. Двор обрамлён большой деревянной колонной и закрыт металлической сеткой и поликарбонатными экранами. Рядом находится стальная винтовая лестница, ведущая на еще более высокую террасу на крыше, откуда открывается панорамный вид на город.

Новая школа в парижском пригороде Трембле-ан-Франс, Франция

Средний рейтинг
0 из 5 звезд. 0 голосов.